,

Fakten

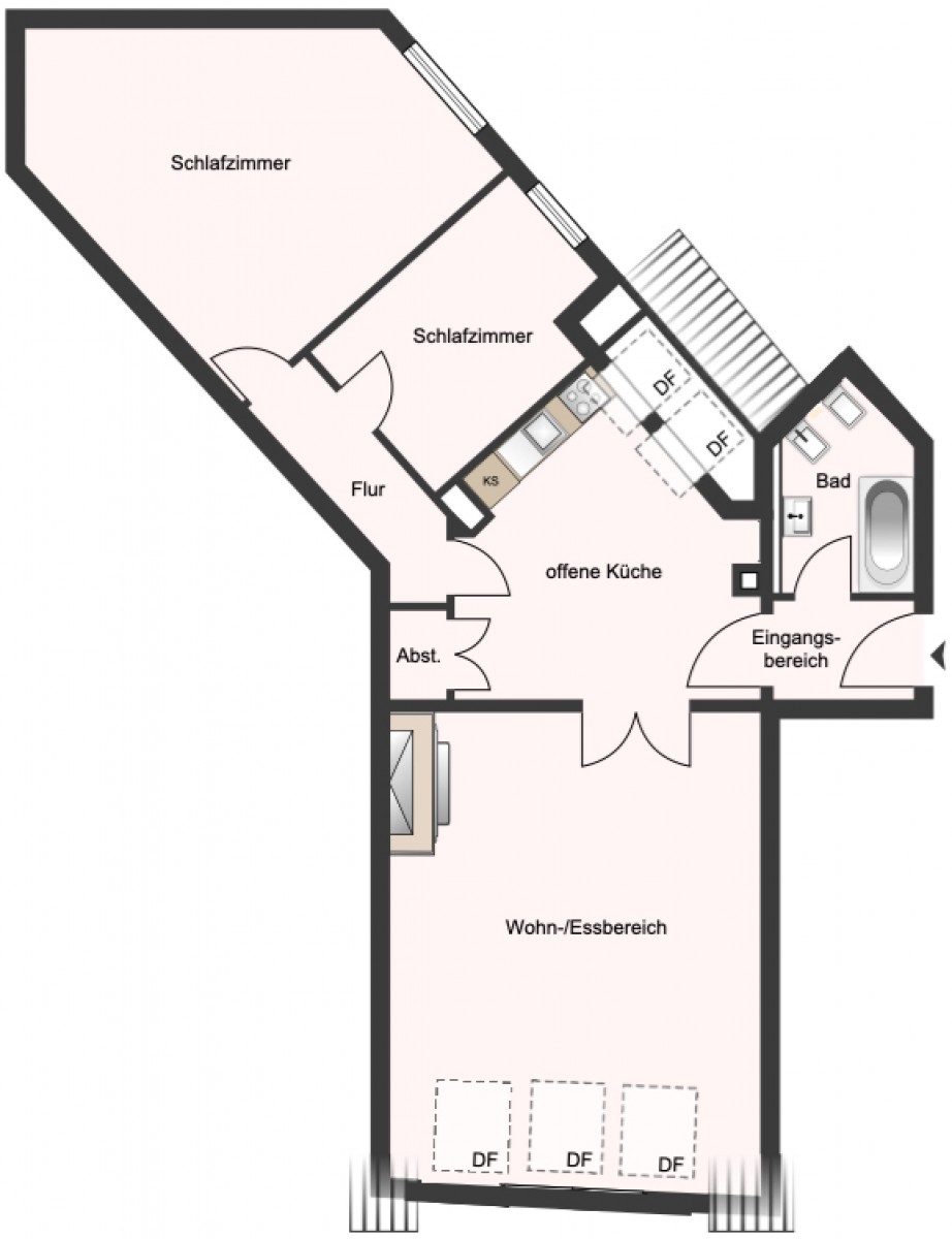
Grundriss

Ein Grundriss liegt uns und unserem Auftraggeber leider nicht vor.