Gewerbliches Baugrundstück mit positivem Bauvorbescheid unweit vom Nedderfeld in Hamburg - Lokstedt
Jägerlauf 38, 22529 Hamburg-Lokstedt
Fakten
Kaufpreis1.800.000 €
Bezug persofort/nach Vereinbarung
Objektbeschreibung
Das angebotene Grundstück erstreckt sich über eine Fläche von ca. 1.244 m² und wird als Baugrundstück angeboten. Wir möchten Sie höflich darum bitten, dass Grundstück ausschließlich nach vorheriger Absprache mit uns und während eines Besichtigungstermins zu betreten.
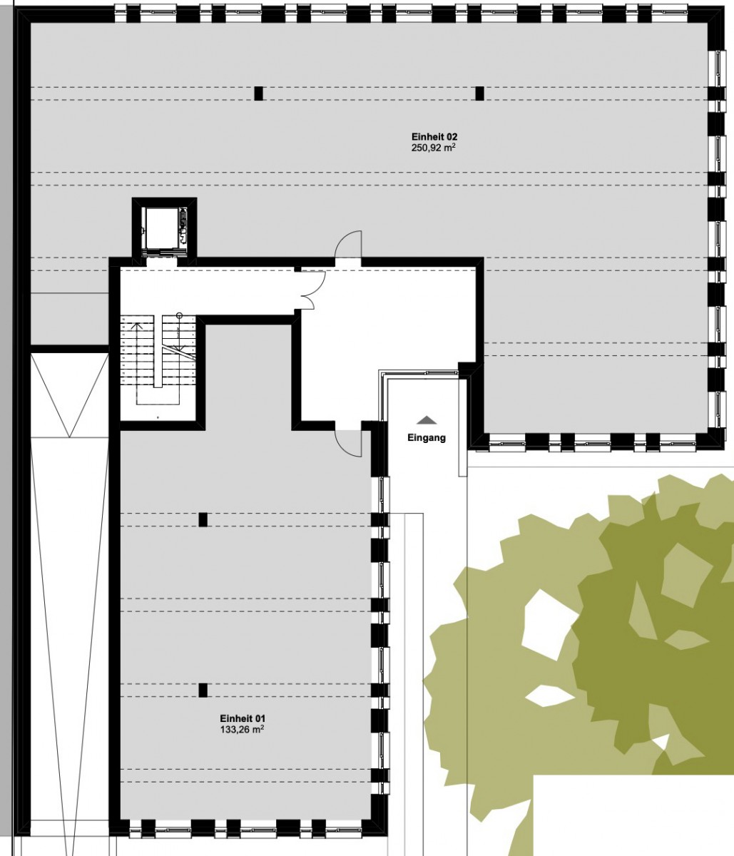
Das Grundstück ist bereits vollständig erschlossen und mit einem Hallengebäude bebaut. Es besteht aus einer Gewerbefläche und einer Wohnung. Beide Einheiten sind vermietet.
Gemäß dem gültigen Bebauungsplan Lokstedt 52 / Eppendorf 9 / Groß Borstel 11 haben wir das Grundstück mit einer Bauplanung für ein Bürogebäude überplant und einen positiven Bauvorbescheid erwirkt. Weitere Details können Sie den Folgeseiten entnehmen.
Courtage
Alle mit dem Ankauf verbundenen Notar- und Gerichtskosten trägt der Käufer. Die Maklercourtage beträgt für den Käufer 6,25 % des Kaufpreises inklusive der gesetzlichen Mehrwertsteuer. Die Courtage ist verdient und fällig mit Abschluss eines Kaufvertrages.
Alle Angaben nach Auskunft des Verkäufers. Bei aller Sorgfalt können wir keine Gewähr dafür übernehmen, dass diese Daten richtig und vollständig sind und das Objekt im Augenblick des Zuganges der Offerte noch verfügbar ist. Irrtum, Änderung und Zwischenverkauf bleiben vorbehalten. Dieses Angebot ist unverbindlich und freibleibend.
Sonstiges
Auf den genannten Kaufpreis fällt die gesetzliche Mehrwertsteuer von 19 Prozent an.
Projektplanung:
Gemeinsam mit den Verkäufern des Grundstücks und mit dem Architektenbüro PLAN²IA Finnern.Naefcke.Nolte.Wolff PartGmbB haben wir eine sehr ansprechende Planung für einen Büroneubau geschaffen und einen positiven Bauvorbescheid für dieses Vorhaben erwirkt.
Geplant sind fünf Etagen mit insgesamt 7 Einheiten. Die Nutzflächen bewegen sich zwischen ca. 102 m² und ca. 281 m². Im Kellergeschoss ist eine Tiefgarage vorgesehen.
Gemäß der Auskunft des Bauamts, wäre auch eine Nutzung für gewerbliches Wohnen in Form eines Pflege-, Apartment-, oder Boardingshauses möglich. Selbstverständlich stellen wir Ihnen sehr gerne einen Kontakt her.
Lageplan
Jägerlauf 38, 22529 Hamburg
Zur Anzeige der Karte nutzen wir Mapbox und OpenStreetMap. Dabei können Daten an Server außerhalb der EU, z.B. in den USA, übertragen werden. Mit „Zustimmen und Karte anzeigen“ erlauben Sie dies (widerrufbar).
Impressum |
Datenschutz
Lagebeschreibung
Das Grundstück befindet sich im Hamburger Stadtteil Lokstedt und liegt zwischen der Innenstadt und dem Flughafen. Der Jägerlauf verläuft zwischen dem Nedderfeld und der Osterfeldstraße. Es handelt sich um das zweite Grundstück auf der linken Seite vom Nedderfeld aus. Im Nedderfeld, auch „Automeile“ genannt, sind viele der großen Automarken vertreten. Von Audi bis Opel ist die Straße nebst einiger Infrastruktur zu dem Thema Auto, fast komplett von Automarken gesäumt. Weiter östlich in Richtung Eppendorf, befindet sich das Einkaufzentrum „Nedderfeld Center“, in dem durch Einzelhandel, Supermärkte, Apotheken, Banken und einem Elektromarkt die Dinge des alltäglichen Bedarfs abgedeckt werden. Im weiteren Verlauf folgen ein Fahrradhändler und ein Baumarkt.
Die Verkehrsanbindung ist hervorragend. Die U-Bahn-Stationen „Lattenkamp“ und „Hagenbecks Tierpark“ sind in wenigen Minuten mit dem Bus zu erreichen und bieten eine schnelle Anbindung an das öffentliche Verkehrsnetz. Darüber hinaus ist die Buslinie 5 fußläufig zu erreichen, die Sie „non Stop“ zum Beispiel bis zum Hauptbahnhof bringt.
Die Autobahn A7, Anschlussstelle Stellingen und der Flughafen Hamburg sind in nur 10 Minuten mit dem Auto erreichbar.
Die Mischung aus Wohn- und Gewerbenutzung zwischen den beiden Straßen Osterfeldstraße und Nedderfeld trägt zur lebendigen Atmosphäre des Viertels bei und bietet eine attraktive Umgebung für Bewohner und Geschäftsinhaber gleichermaßen.
Kontakt
Christoph Bayer
bayer@bayer-immobilien.de
040 89 00 78 70
Alsterdorfer Straße 228
22297 Hamburg
Objekt-Kennung 130